
Волоколамское шоссе 26 км от МКАД,
г.п. Снегири, дер. Ленино, ул. Живописная, д. 34,
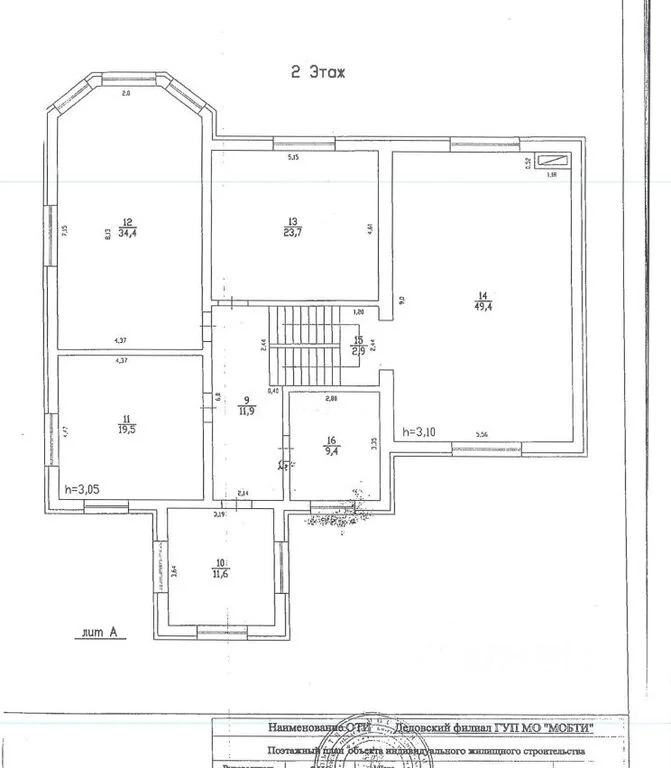
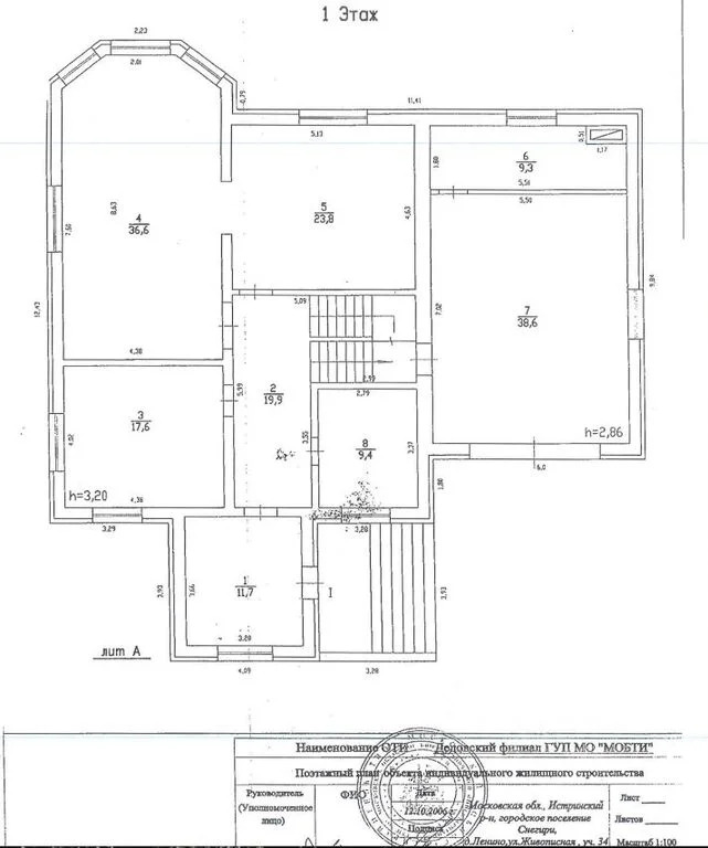
продается Трехуровневый дом (два этажа, мансарда) 2006 г.п. на участке 19 соток ИЖС, Материал стен пенобетонные блоки, облицованные кирпичом, общ. пл. 330 кв.м., жилая 193 кв.м. кузня 24 кв.м. столовая 36.6. в доме гараж на 3 м/м площадью 38 кв.м. 5 спален, 2 санузла, требует ремонта, 1 собственник.
21250000 руб. | 321930 $ | 282123 €